123 E CERMAK CHICAGO

123 E CERMAK CHICAGO is a 379,500-square-foot, 466 room hotel and mixed-use development connected directly to McCormick Place Convention Center.

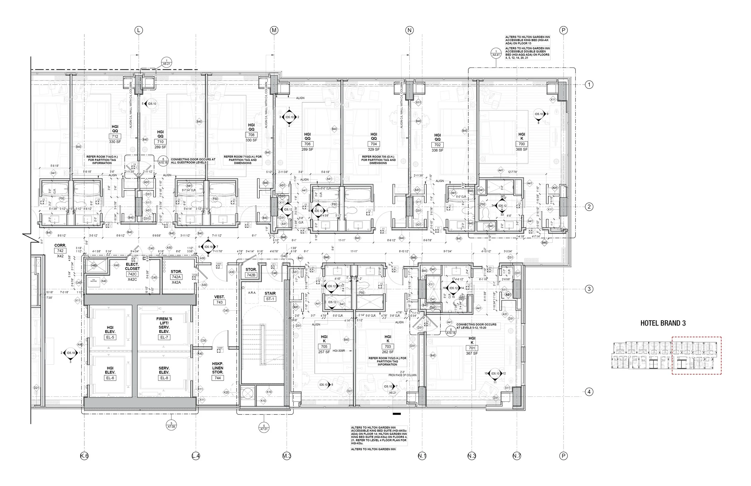
Todd Halamka + Partners has been commissioned to design a new 22 story hotel between Michigan Avenue and Indiana along Cermak Road in Chicago. The mixed-use project comprises a horizontally stacked, three brand Hilton hotel tower.  A three story hotel amenity & retail podium and tower rooftop restaurant and bar complete the base and top of the development.  An existing four story historic Motor Row District structure is also part of the development, housing additional retail and hotel functions.

With project partners Antunovich Associates and Looney Associates, the hotel opened in the Fall of 2018. 

Images by Todd Halamka + Partners. Photographs by Dave Burk.

Design Team
Todd Halamka
Patrick Carata
Preethi Srikanth
Olia Miho
Susan Morrow

Architect
TH+P

 

< BACK